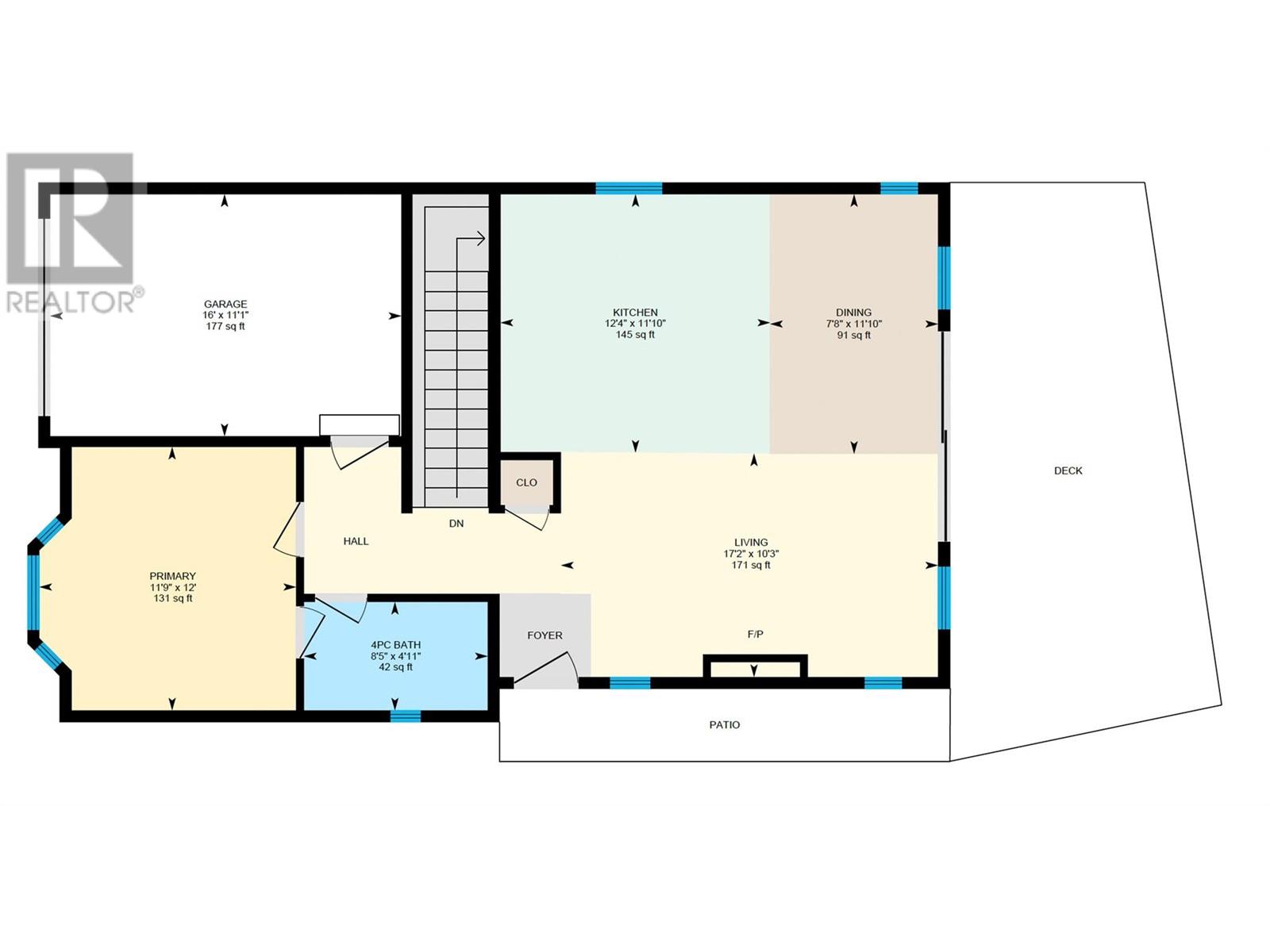
OPEN HOUSE SATURDAY MARCH 21, 12:00-2:00 PM. Experience the quintessential Okanagan lifestyle in this stunning, newer walk-out rancher perfectly positioned within the highly sought-after La Casa Lakeside Resort. Designed for effortless comfort and versatility, the bright, open-concept layout features a main-floor primary suite and bathroom. The large kitchen, dining, and living areas are designed for effortless entertaining and flooded with natural light. Downstairs you will find a flexible den easily converted into a third bedroom or home office, along with another bedroom and bathroom. This home is thoughtfully equipped, boasting a single garage with an EV CHARGER and a home already pre-wired for a GENERATOR. New Home Warranty still applies. This is a great revenue property, or the perfect lakeside cottage for family, while the location offers some of the best lakeside amenities in the Okanagan; private beach access, 100-slip marina with boat launch, an Aqua Park for the kids, 2 pools and 3 luxury hot tubs, an 18-hole mini-golf course, tennis and pickleball courts, beach volleyball, a children's playground, miles of surrounding hiking, biking, and ATV trails, a dedicated dog beach, a general store, restaurant, and private security for the ultimate gated experience. With short-term rentals allowed, this property represents both a premier vacation retreat and a savvy investment opportunity in one of the region’s most vibrant lakeside communities. Quick possession possible. (id:43281)


